Well presented suite at Town Hall

Suite 10.01, 447 Kent Street , sydney

Interpro House is a 22-storey commercial office building in the heart of Sydney CBD, diagonally opposite to Town Hall rail station. 5 min walk to Gadigal Metro. 4 high–speed lifts, basement parking and on-site building manager. New bathrooms in 2025 across each floor. Shower facilities.

- Warm shell suite with 12 desks
- Good natural light
- Available March 2026

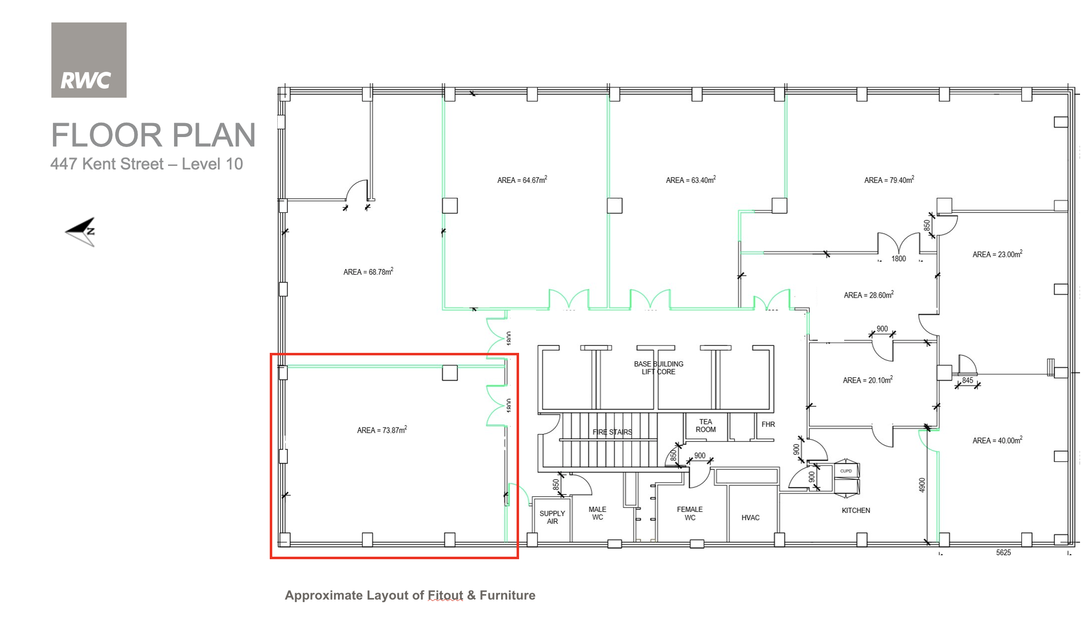
Area m2: 73.87 approx
Rent $/m2: $850 Gross
Rental PA: $62,790
Floorplan: Download

Julian Milne 0411 480 719
jmilne@raywhite.com